Mieszkania
435 000 zł
- Identyfikator właściwości: 35206
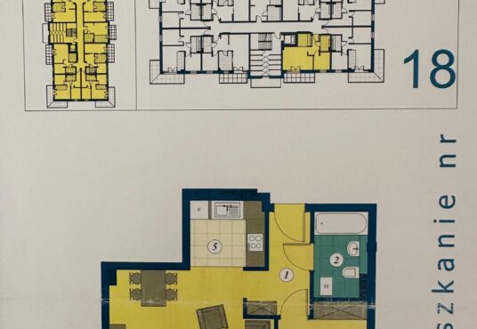
- Powierzchnia: 42.50 m²
- Liczba pokoi: 2
- Piętro: 1
- Stan lokalu: Do zamieszkania
- Typ budynku: Blok
- Rynek: Wtórny
- Forma własności: Pełna własność z Księgą Wieczystą oraz udziałem w gruncie
Opis
Na sprzedaż komfortowe, dwupokojowe mieszkanie o powierzchni 42,50m², usytuowane na pierwszym piętrze nowoczesnego budynku z 2018 roku, zlokalizowanego na osiedlu Korczak Park w Kaliszu. Inwestycja wyróżnia się wysokim standardem wykonania, estetyką części wspólnych oraz infrastrukturą dla mieszkańców.
Rozkład pomieszczeń:
* salon z wyjściem na balkon,
* otwarta kuchnia,
* sypialnia,
* przedpokój,
* łazienka z wc.
Mieszkanie zostało zaprojektowane z myślą o wygodzie i funkcjonalności codziennego użytkowania, z dbałością o detale oraz maksymalne wykorzystanie przestrzeni:
* Kuchnia w zabudowie meblowej wykonanej na wymiar przez stolarza – gwarancja trwałości, estetyki oraz ergonomii. W pełni wyposażona w sprzęt AGD: płyta indukcyjna, piekarnik, mikrofalówka, okap, zmywarka oraz lodówka,
* Salon przestronny i funkcjonalny, wyposażony w narożnik, stół, ławę oraz meble do przechowywania,
* Sypialnia komfortowa, z łóżkiem, szafą, komodą oraz stolikiem,
* Łazienka nowoczesna, wyposażona w prysznic.
Duże okna PCV zapewniają doskonałe doświetlenie wnętrz, a przestronny balkon stanowi idealne miejsce do wypoczynku. Na oknach zamontowane zewnętrzne rolety elektryczne. Ogrzewanie oraz ciepła woda z sieci miejskiej gwarantują komfort i niskie koszty eksploatacyjne.
Do mieszkania przynależy miejsce postojowe na zewnętrznym ogrodzonym parkingu oraz komórka lokatorska sprzedawane za poniższe kwoty:
* 15.000 zł – miejsce postojowe,
* 10.000 zł – komórka lokatorska.
Informacje dodatkowe:
* lokal stanowiący odrębną własność (księga wieczysta),
* budynek zarządzany przez wspólnotę mieszkaniową,
* czynsz ok. 400 zł,
* cicha, nowoczesna winda,
* budynek oddany do użytkowania w 2018 roku,
* plac zabaw na zamkniętym osiedlu,
Lokalizacja:
Nieruchomość położona jest w doskonale skomunikowanej części Kalisza. Na osiedlu Korczak znajdują się markety spożywcze i sklepy specjalistyczne: Kaufland, market Dino, sklep ODIDO oraz ABC a także apteki, paczkomaty i stacja paliw a także szkoły i przedszkola.
Bliskość parku nad Krępicą sprzyja aktywnemu wypoczynkowi i spacerom. Bardzo dobra dostępność komunikacji miejskiej.
Idealna propozycja dla rodziny, pary lub jako inwestycja pod wynajem – gotowe do wprowadzenia mieszkanie w atrakcyjnej lokalizacji, z pełnym wyposażeniem
i funkcjonalnym układem.
Zadzwoń i umów się na prezentację!
Chętnie udzielimy dodatkowych informacji.
Licencja zawodowa nr: 31266




















Najnowsze komentarze