Domy
900 000 zł
- Identyfikator właściwości: 34375
- Powierzchnia: 204.78 m²
- Liczba pokoi: 5
- Stan lokalu: Do wykończenia
- Standard wykończenia: Surowy zamknięty
- Typ budynku: Dom wolnostojący
- Rynek: Pierwotny
- Forma własności: Pełna Własność z Księgą Wieczystą
- Powierzchnia działki: 725 m²
Opis
Na sprzedaż przestronny dom parterowy z wiatą garażową na 2 auta, o łącznej powierzchni 204,78 m², posadowiony na działce 725 m² w miejscowości Zagorzyn (gm. Blizanów) – ok. 8 km od Centrum Kalisza.
OPIS NIERUCHOMOŚCI
Dom wybudowany w 2025 r. w solidnej technologii:
* ściany z pustaka ceramicznego
* fundamenty – beton B30 i bloczki
* strop – płyty panelowe ażurowe
*dach ocieplony styropianem 59 cm + 2 warstwy papy Bauder
* okna PCV z żaluzjami fasadowymi
Nieruchomość w stanie surowym zamkniętym, co daje możliwość wykończenia i aranżacji wnętrz według własnych potrzeb.
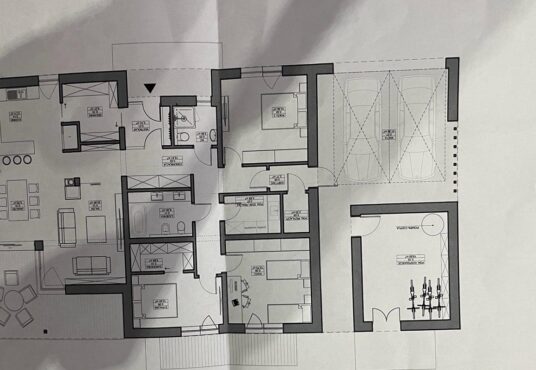
UKŁAD POMIESZCZEŃ (135,96 m²)
* wiatrołap (3.56m2)
* komunikacja ( 15.52m2)
* WC ( 3.65m2)
* pokój 2 ( 15.37m2)
* korytarz ( 2.17m2)
* pomieszczenie przyłączy ( 2.21m2)
* pomieszczenie gospodarcze / pralnia ( 4.66m2)
* pokój ( 15.68m2)
* sypialnia ( 10.38)
* garderoba ( 3.88)
* łazienka ( 6.11m2)
* salon ( 24. 69m2)
* jadalnia ( 9.76m2)
* kuchnia ( 12.13m2)
* spiżarnia (6.19m2)
Łącznie 135.96 m2
DODATKOWE POWIERZCHNIE
* Wiata garażowa na 2 auta – 49,35 m²
* Pomieszczenie gospodarcze – 19,47 m²
* Taras ok. 32 m²
MEDIA I DOJAZD
* woda – przyłącze
* prąd – przyłącze
* kanalizacja – warunki przyłączenia z drogi gminnej
* dojazd utwardzoną drogą z służebnością przejazdu
*działka ogrodzona z 3 stron
LOKALIZACJA
Spokojna i zielona okolica z zabudową jednorodzinną.
W bliskim sąsiedztwie:
* sklep
* szkoła
* przystanek autobusowy
Bardzo szybki dojazd do Kalisza (ok. 8 km).
PODSUMOWANIE
Dom o przemyślanym układzie funkcjonalnym, w solidnej konstrukcji i dogodnej lokalizacji – idealny do wykończenia pod własne potrzeby.
Zdjęcia przedstawiają projekt budynku oraz poglądowe aranżacje wnętrz.
Zapraszam do kontaktu i na prezentację!

















Najnowsze komentarze